Douglas Hall

Traditional Dorm Style

Douglas Hall sits in the heart of campus and is divided into four wings, offering a variety of living experiences for undergraduate students. It's the perfect place for first and second-year students to dive into campus life and make lasting memories. With its central location, Douglas Hall provides easy access to all campus facilities and activities, ensuring you're always at the center of the action.


Why Choose Douglas Hall?

  • Central Location: Being in the middle of campus, Douglas Hall provides easy access to all campus facilities and activities.
  • Community Spaces: Hallways from all four wings empty into two large, central common lounges. The Upper Lounge features a study room, a discipleship group meeting room, a big screen TV, a pool table, and a kitchen area with chairs and tables for late-night snacks or studying. The Lower Lounge offers ping-pong tables, a big screen TV, and The Hub, where a resident assistant on duty can be found from 8 p.m. to Midnight, building community by planning events, playing music, and being available to students.

Douglas Hall Amenities

Douglas Premium

  • Three-story area housing male students
  • Suites with connected washrooms shared by four residents

Standard Housing

  • Male and female dorms with traditional housing in hallways of 16-24 students
  • Pairs of students share a common hallway washroom
  • Each residence area has a small lounge for hanging out as a small group, a specific resident assistant, and its own unique traditions and history

Common Lounges

  • Upper Lounge: study room, discipleship group meeting room, big screen TV, pool table, kitchen area with chairs and tables
  • Lower Lounge: ping-pong tables, big screen TV, The Hub with a resident assistant on duty from 8 p.m. to midnight

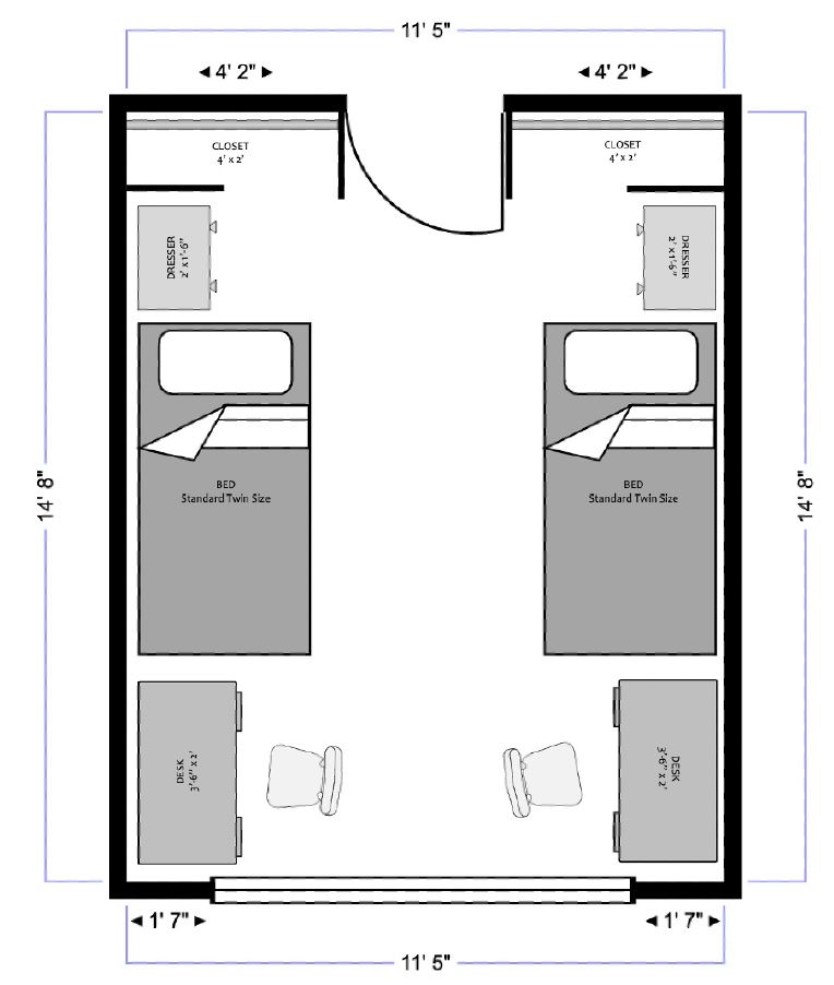
Douglas Hall Floor Plans

Douglas 2/3, 8/9 & North [PDF]

Douglas 4/5 [PDF]

Douglas 6/7 [PDF]